appartement Les Sables-d'Olonne T3 avec balcon et double parking - Emplacement recherché
58 m² - 3 pièce(s) - 2 chambre(s)
Les Sables-d'Olonne
Retour à la listeType
Appartement
Référence
3_14190
Prix
223000 € HAI dont 6.19% d'honoraires agence
Description du bien
Au dernier étage d'une résidence récente, agréable et bien entretenue, cet appartement coche toutes les cases : ascenseur, grand balcon orienté Ouest, pièce de vie spacieuse avec cuisine aménagée, deux places de stationnement (1 en sous-sol et 1 extérieure), salle de bains et toilettes séparées... Le tout en très bon état, au calme et à proximité des commerces, des transports comme du marché Arago. Ne tardez pas !Les informations sur les risques auxquels ce bien est exposé sont disponibles sur le site Géorisques : www.georisques.gouv.fr
Géorisques
Les informations sur les risques auxquels ce bien est exposé sont disponibles sur le site Georisques
Caractéristiques
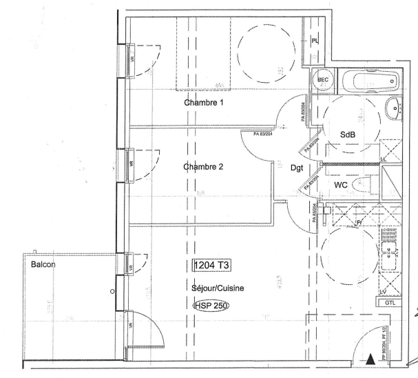
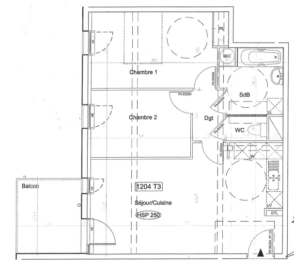
- Surface totale : 58 m²
- Nb de pièce(s) : 3
- Surface séjour : 26 m²
- Nb de chambre(s) : 2
- Nb de salle(s) de bain : 1
- Nb de salle(s) d'eau : 0
- Ascenseur : OUI
- Garage : NON
- Nb de parking(s) : 2
- Terrasse : NON
- Num. d'étage : 2
- Surface terrain : 0 m²
Diagnostics
Diagnostic performance energie
Valeur : 146
Valeur : 146
Estimation des coûts
annuels d'énergie
annuels d'énergie
Les coûts sont estimés en fonction des caractéristiques du logements et pour une utilisation standard sur 5 usages (chauffage, eau chaude sanitaire, climatisation, auxiliaires)
Entre 710€ et 1000€/an
Prix moyen des énergies calculées au 1er janvier 2021 (abonnement compris)
Emission de gaz à effet de serre
Copropriété
Bien soumis à la copropriété: OUI
Charges annuelles : 1076 €
Nbr de lots dans la copropriété : 18
Procédure en cours : NON
Localisation
45 Rue séraphin Buton, 85180 chateau d olonne










